Fully Furnished Shared/Student Accommodation
HOUSE 4
Room 5 – $320 per week.
Includes king single bed, desk with chair and built-in wardrobes. Also features it’s own reverse cycle air-conditioning unit. Extra $20 Per Week for Utilities (electricity, internet and water)
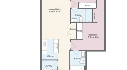
Fully Furnished Shared/Student Accommodation just moments walk from University of Queensland. This modern four bedroom townhouse features a large stylish kitchen with dishwasher, undercover balconies plus separate lounge and dining.
All bedrooms and lounge room with air conditioning, individual internet and TV antenna points.
– Walk to University of Queensland
– 2-3 minutes’ walk to bus stops and Toowong or Taringa train station
– 1.5km to Guyatt Park Ferry Terminal
– 1.6km to The University of Queensland campus
– Shopping precincts of Indooroopilly Westfield, Toowong Village and Taringa close-by
– Surrounded by numerous parks and bike paths
*Please note some pictures may be indicative only and of similar property*


































































