Beautiful Unit with Large Balcony
Inner northside living with convenience and style, this first floor apartment is exactly what you’ve been looking for. Located in peaceful Lyons Terrace, this apartment complex has been built for the discerning resident with an oversized private balcony directly off the living room, 2 generous bedrooms, a modern bathroom and kitchen. In a building of 32 apartments, number 15 is at the rear of the building giving maximum privacy and catching the breeze on the balcony.
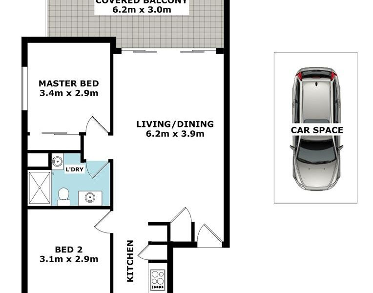
Both bedrooms are complete with ceiling fans and large built in wardrobes, with the bathroom in between, there is good separation, great for sharing or having guests stay.
The bathroom has an oversized shower, plenty of mirror and bench space and includes the laundry. The kitchen is fresh and modern with electric oven, cook-top and stainless steel appliances and range-hood.
Features include
– First floor with stair walk up – no lift
– Air-conditioned living & dining
– Remote lock-up basement car space
– Numerous visitor car parks
– Bus 240m walk
– Windsor train station 550m walk
– Royal Brisbane & Woman’s Hospital 1.3km away
– Coles and Lutwyche Shopping Centre 2km away
– Wilston State School & St. Columbas’ Primary School 2.4km away
– Flynn Oval Park & Enoggera Creek Bikeway at the end of the street

































































